CNC Ready Files & CAD/CAM Production Documentation

CNC-ready joinery files, cutting lists and CAD/CAM production documentation created using TopSolid Wood. Supporting cabinet makers and workshops across Melbourne.

Big Ideas, Real Impact.

At Blueprint To Build, we provide CNC-ready joinery files and CAD/CAM production documentation that allow workshops to move directly from design into manufacturing.

Using advanced modelling software including TopSolid Wood, we convert joinery designs into accurate machining-ready information that supports efficient CNC production.

This service allows cabinet makers, shopfitters and joinery workshops to maintain production momentum without needing to dedicate additional time to CNC programming or machining preparation.

Our Services

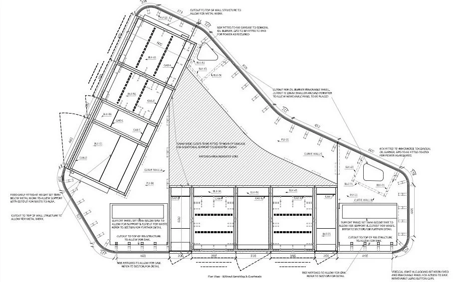
  • Producing reliable CNC machining files requires more than simply exporting geometry from a model.

    Every project must consider the practical requirements of joinery construction, machining operations and assembly methods.

    Our workflow ensures that joinery models are prepared with manufacturing in mind, including:

    • panel sizing and optimisation
    • machining logic and tooling considerations
    • construction assemblies
    • hardware preparation
    • material efficiencies

    By resolving these elements within the model, workshops receive production-ready information that integrates smoothly with CNC workflows.

  • All CNC documentation is produced using TopSolid Wood, a professional CAD/CAM system developed specifically for the joinery industry.

    This allows us to create highly accurate production models that connect directly with machining operations.

    Working within a CAD/CAM environment ensures that:

    • joinery components are dimensionally accurate
    • machining operations are logically structured
    • production documentation aligns with the model
    • changes can be implemented efficiently

    This integrated workflow significantly reduces the risk of errors between design and production.

  • Many joinery workshops operate with limited time available for CNC preparation when projects begin to accumulate.

    Blueprint To Build can act as a white-label CAD/CAM partner, preparing machining-ready files that allow your workshop to focus on production rather than programming.

    Our services help workshops:

    • reduce CNC programming time
    • maintain factory workflow
    • improve documentation clarity
    • streamline machining preparation

    This support allows workshops to increase efficiency while maintaining control over their manufacturing process.

  • Alongside CNC machining files, we can also provide supporting documentation that assists the workshop floor.

    This includes:

    • panel cutting lists
    • material breakdowns
    • joinery component schedules
    • assembly references
    • hardware allocation

    These documents allow factory teams to move confidently through the manufacturing process with clear and consistent information.

Projects We Commonly Support

Our shop drawing services are used across a wide range of joinery projects including:

• kitchens and laundries
• wardrobes and storage systems
• custom residential joinery
• commercial interiors
• retail shop fitting
• multi-residential developments

From individual cabinetry pieces to full joinery packages, our focus is always on delivering clear and practical documentation.

Who This Service Is for?

Our joinery shop drawing services are commonly used by:

This service is commonly used by:

• cabinet makers running CNC machinery
• joinery workshops needing CAD/CAM support
• shopfitters preparing projects for manufacture
• builders coordinating joinery packages

By providing accurate machining documentation, we help teams move directly from design to production with minimal disruption.

Need CNC Files Prepared For Production?

If your workshop requires machining-ready files or CAD/CAM support for an upcoming project, Blueprint To Build can assist.

Our CNC-ready documentation allows joinery teams to move directly into production with confidence.

We service all across Melbourne

From Elsternwick to Epping and Pakenham to Preston, we build premium custom joinery for your business, store or home.

Some of the areas we service..

Ivanhoe
Ivanhoe East
Heidelberg
Heidelberg Heights
Heidelberg West
Viewbank
Rosanna
Macleod
Bundoora
Yallambie
Montmorency
Eltham
Research
Warrandyte
Park Orchards
Ringwood North

Brighton
Brighton East
Hampton
Hampton East
Sandringham
Black Rock
Beaumaris
Middle Park
Albert Park
Port Melbourne
St Kilda
St Kilda East
St Kilda West
Elwood
Balaclava
Ripponlea

Surrey Hills
Mont Albert
Box Hill
Box Hill North
Blackburn
Blackburn North
Blackburn South
Forest Hill
Nunawading
Mitcham
Doncaster
Doncaster East
Templestowe
Templestowe Lower
Balwyn East
Vermont
Vermont South

Toorak
South Yarra
Armadale
Prahran
Windsor
Malvern
Malvern East
Kooyong
Glen Iris
Hawksburn
Camberwell
Canterbury
Kew
Kew East
Balwyn
Balwyn North
Deepdene

Preston
Reservoir
Pascoe Vale
Pascoe Vale South
Hadfield
Fawkner
Broadmeadows
Glenroy
Oak Park
Strathmore
Strathmore Heights
Airport West
Essendon
Essendon North
Essendon West
Moonee Ponds
Ascot Vale

Richmond
Collingwood
Fitzroy
Fitzroy North
Carlton
Carlton North
Abbotsford
Clifton Hill
North Melbourne
Parkville
Brunswick
Brunswick East
Brunswick West
Coburg
Coburg North
Northcote
Thornbury

and surrounding areas..

Let’s Connect

Every great project starts with a conversation. Tell us what you’re working on — we’ll bring it to life, together.